Villa in Finca Cortesin | Golfside Villa 10 Luxury Guide

Building typeVilla

Area752 m2

Plot Area2145 m2

Bedrooms5

Bathrooms6

Private pool

Private garden

Terrace 353 m²

Finca Cortesin – Golfside Villa 10: Luxury Living

A true gem for a villa in Finca Cortesin

First of all, Golfside Villa 10 is a standout property in the world of luxury real estate. Specifically, it is nestled within the prestigious Finca Cortesin Resort. This villa in Finca Cortesin perfectly combines elegance, comfort, and breathtaking views. For this reason, it offers a serene haven for the most discerning buyers. Furthermore, the carefully landscaped gardens create a peaceful atmosphere. Therefore, this property represents a unique investment opportunity on the Costa del Sol.

Panoramic views from this villa in Finca Cortesin

Secondly, the property is positioned on a frontline golf plot with direct fairway access. Because of its elevated position, it provides sweeping views of the Mediterranean Sea. In addition, the outdoor terraces extend the living spaces for year-round enjoyment. Consequently, you can enjoy the picturesque scenery in every season. As a result, owning a villa in Finca Cortesin means living with nature as your backdrop. Indeed, the vistas from the master suite are simply unparalleled.

Architecture and design of a villa in Finca Cortesin

Moreover, the villa was crafted by the acclaimed architects Vicens & Ramos. Specifically, the design highlights meticulous attention to detail and luxurious finishes. Because of the expansive floor-to-ceiling windows, the interiors are bathed in natural light. Similarly, the light wood flooring and neutral tones emphasize a sense of tranquility. Thus, every room in this villa in Finca Cortesin feels spacious and modern. Furthermore, the kitchen features top-tier Gaggenau appliances and a custom island.

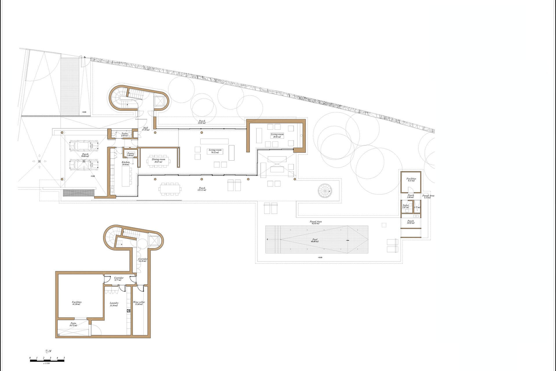
A thoughtful three-level layout

Besides the design, the property spans three levels to cater to modern living needs. For example, the ground floor living areas connect directly to the garden through sliding doors. Meanwhile, the private bedrooms upstairs each feature their own terrace for maximum privacy. Consequently, this layout ensures that every family member has their own retreat. In addition, the master suite includes a freestanding bathtub overlooking the sea. Therefore, this villa in Finca Cortesin offers the ultimate relaxation experience.

Infinity pool and outdoor elegance

Additionally, the exterior spaces of the villa are equally striking and refined. For instance, landscaped gardens are filled with tall palms and manicured lawns. At the center, an elegant infinity pool harmonizes with the modern aesthetic of the home. Because of the light blue tiles, the water blends perfectly with the Mediterranean sky. As a result, this villa in Finca Cortesin provides a world-class outdoor living experience. So, it is the perfect place for hosting social gatherings or quiet afternoons.

Summary: Why buy a villa in Finca Cortesin?

To summarize, Golfside Villa 10 stands as a pinnacle of sophistication and luxury. Given these points, its unmatched views and exclusive location make it a top-tier choice. Because it is located near Marbella and Puerto Banús, convenience is guaranteed. Finally, we invite you to schedule a private viewing to see this home firsthand. In conclusion, this villa in Finca Cortesin is ready to welcome its new owner. So, contact us today to begin your journey toward luxury living!

Agnieszka Mierzwińska-Wójt

+34 722 341 456 Request an offer

Thank you very much for your interest in our offer.

It will be our pleasure and commitment to answer all your questions. Please send us a message using the contact form or call us on
+34 722 341 456 will get in touch with you to present individually tailored proposals and clarify any doubts.

Location

Property